您现在所在的位置:首页 > 产品中心
NXC,HXC型高效组合式斜板废水沉淀器
NXC,HXC型高效组合式斜板废水沉淀器是我公司根据分散颗粒的浅层沉淀理论,吸取了国外多层、多格、斜板沉淀技术,结合各种不同污水成分开发研制的一种新型水处理设备。适用于冶金、市政工程,具有处理效率高,占地面积小、能耗低、投资省、运行管理方便、安全、可靠等优点。

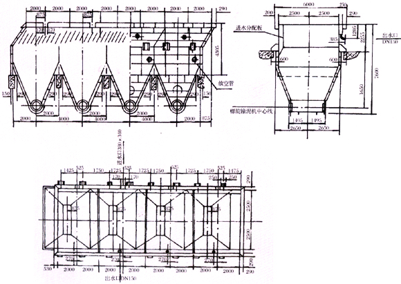
图一 4NXC-60高效组合式斜板沉淀器
| 技术性能
|
|||
| 序号
|
名称
|
单位
|
数据
|
| 1
|
沉淀器结构
|
4组合逆流式
|
|
| 2
|
单池处理水量
|
m3/h
|
40-60
|
| 3
|
沉淀器名称代号
|
4-NXC-60
|
|
| 4
|
沉降时间
|
min
|
<15
|
| 5
|
板内流速
|
mm/s
|
4.1
|
| 6
|
有效面积
|
m2
|
165
|
| 7
|
进水口尺寸
|
mm
|
340×380
|
| 8
|
出水管口径
|
mm
|
DN150
|
| 9
|
进水悬浮物浓度(ss)
|
mg/L
|
<5000
|
| 10
|
出水悬浮物浓度(ss)_
|
mg/L
|
<150
|
| 11
|
斜板倾斜度
|
60。±5。
|
|
| 12
|
输泥机排泥含水率
|
<60%
|
|
| 13
|
输泥机电机功率
|
KW
|
5.5
|
| 14
|
单池自重
|
Kg
|
-17000
|
组合式斜板沉淀器技术性能表
|
序号
|
项目
|
单位
|
NXC-40
|
NXC-60
|
HXC-60
|
HXC-80
|
HXC-120
|
|
1
|
处理水量
|
M3/h
|
30-40
|
50-60
|
45-60
|
60-80
|
100-120
|
|
2
|
进水悬浮物含量
|
mg/L
|
<6000-1000
|
||||
|
3
|
出水悬浮物含量
|
mg/L
|
<100
|
||||
|
4
|
沉淀时间
|
min
|
<15
|
||||
|
5
|
进水管管径DN
|
mm
|
125
|
150
|
200
|
||
|
6
|
出水管管径DN
|
mm
|
125
|
150
|
200
|
||
|
7
|
输泥机排泥含水率
|
%
|
<60
|
||||
|
8
|
螺旋输泥机功率
|
KW
|
<5.5
|
||||
|
9
|
沉淀器总重量
|
Kg
|
17000
|
19000
|
19000
|
24000
|
29000
|
|
10
|
外形尺寸(L×B×M)
|
m
|
4.8×3.0×7.6
|
5.3×3.2×7.6
|
5.3×3.2×7.4
|
6.0×4.3×7.6
|
6.0×6.8×8.0
|

图二 4HXC-80高效组合式斜板沉淀器
|
技术性能
|
|||
|
序号
|
名称
|
单位
|
数据
|
|
1
|
沉淀器结构
|
4组合横流式
|
|
|
2
|
单池处理水量
|
m3/h
|
60-80
|
|
3
|
沉淀器名称代号
|
4-HXC-60
|
|
|
4
|
沉降时间
|
min
|
<15
|
|
5
|
板内流速
|
mm/s
|
4.1
|
|
6
|
有效面积
|
m2
|
188
|
|
7
|
进水口尺寸
|
mm
|
340×380
|
|
8
|
出水管口径
|
mm
|
DN150
|
|
9
|
进水悬浮物浓度(ss)
|
mg/L
|
<5000
|
|
10
|
出水悬浮物浓度(ss)_
|
mg/L
|
<150
|
|
11
|
斜板倾斜度
|
60。±5。
|
|
|
12
|
输泥机排泥含水率
|
<60%
|
|
|
13
|
输泥机电机功率
|
KW
|
5.5
|
|
14
|
单池自重
|
Kg
|
-24000
|
加入收藏
网站地图